Suche verändern

*** VERKAUFT *** In Bestlage auf der Kärntner Straße – exklusives Geschäftshaus mit hervorragendem Ertrag!


Objekt Nr.:760176
Objektgruppe:Gewerbeobjekte
Objektart:ZINSHAUS_RENDITEOBJEKT
Kauf/Miete:Kauf
Lage
Strasse:Kärntner Straße 190
PLZ:8053
Stadt:Graz Straßgang

Der angegebene Kaufpreis versteht sich als Nettopreis! Energieausweis Energieklasse C. Alle Angaben sind ca. Angaben. Irrtümer und Änderungen vorbehalten. Alle Preisangaben (z.B. Kaufpreise, Mietpreise) sind exkl. Nebenkosten und Maklerhonorar. Die angegebenen Maße verstehen sich als Nutzfläche und sind in ca. angegeben! Ich weise darauf hin, dass zwischen dem Vermittler und dem Auftraggeber ein wirtschaftliches Naheverhältnis besteht.
Objektdaten
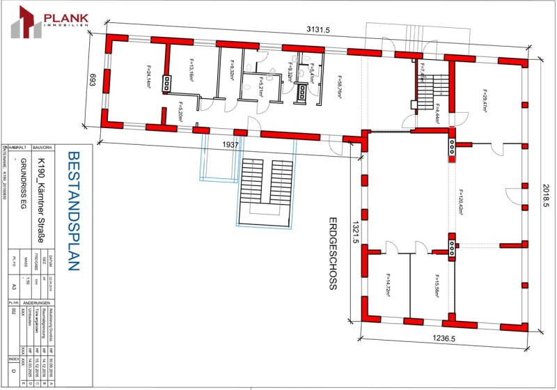
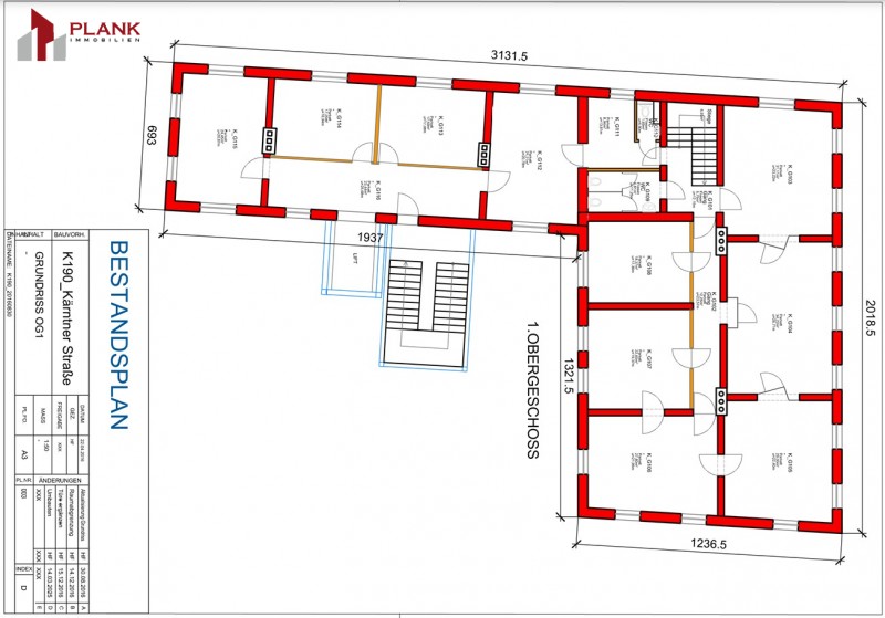
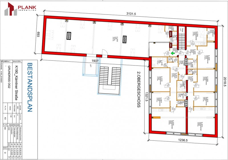
Nutzfläche:1.250 m2
Grundstücksfläche:1.855 m2
Beschreibung
Zum Verkauf steht ein erstklassiges Geschäftshaus in absoluter Toplage an der Kärntner Straße 190, einer der Hauptverkehrsstraßen von Graz, die täglich von 45.000 Fahrzeugen befahren wird. Highlights im Überblick: • Beinahe voll vermietetes Objekt mit einem jährlichen möglichen Nettoertrag von ca. € 145.000,-. Der momentane monatliche Nettoertrag beträgt ca. € 12.000,00, was jährlich ca. € 145.000,00 entspricht. • Das Gebäude wurde hochwertig saniert und befindet sich in sehr gutem Zustand. • Ca. 36 genehmigte Parkplätze sowie eine unterkellerte Doppelgarage mit zusätzlichem Lagerraum bieten zahlreiche Nutzungsmöglichkeiten. • Grundstücksfläche: 1.855 m² mit einer Bebauungsdichte von 1,0 im Kerngebiet. • Lastenlift • Baureserve – eine attraktive Option für zukünftige Erweiterungen oder Neubauten. Die Lage an der Kärntner Straße garantiert höchste Sichtbarkeit und eine hervorragende Erreichbarkeit, was das Objekt sowohl für Investoren als auch für Gewerbetreibende besonders attraktiv macht. Nutzen Sie diese einmalige Gelegenheit, ein renditestarkes Objekt in einer der besten Lagen von Graz zu erwerben! Für eine Besichtigung vor Ort stehe ich Ihnen gerne zur Verfügung.
Lage
Graz Kärntner Straße
Baujahr:1960
Heizung:Fernwärme
Die Vermittlung der Immobilien ist nach den Bestimmungen des Maklergesetzes provisionspflichtig.
Kontaktperson
Hr. Plank Peter
Email:pp@plankimmo.at
Tel.:0664 / 88 511 585


Expose drucken
Expose versenden