Suche verändern

Charmantes Einfamilienhaus in direkter Nähe zur Therme Bad Loipersdorf!


Objekt Nr.:760143
Objektgruppe:Häuser
Objektart:HAUS
Kauf/Miete:Kauf
Status:Sofort beziehbar
Lage
Strasse:Ober- Henndorf
PLZ:8380
Stadt:Jennersdorf/ Bad Loipersdorf

Energieausweis Energieklasse B. Alle Angaben sind ca. Angaben. Irrtümer und Änderungen vorbehalten. Alle Preisangaben (z.B. Kaufpreise, Mietpreise) sind exkl. Nebenkosten und Maklerhonorar. Die angegebenen Maße verstehen sich als Nutzfläche und sind in ca. angegeben!
Objektdaten
Kaufpreis:EUR 515.000,00
Nutzfläche:170 m2
Grundstücksfläche:780 m2
Balkon- Terrassenfläche:6 m2
Anzahl Zimmer:6
Anzahl Schlafzimmer:3
Anzahl Badezimmer:2
Anzahl Wc:3
Anzahl Balkone/Terrassen:1
Beschreibung
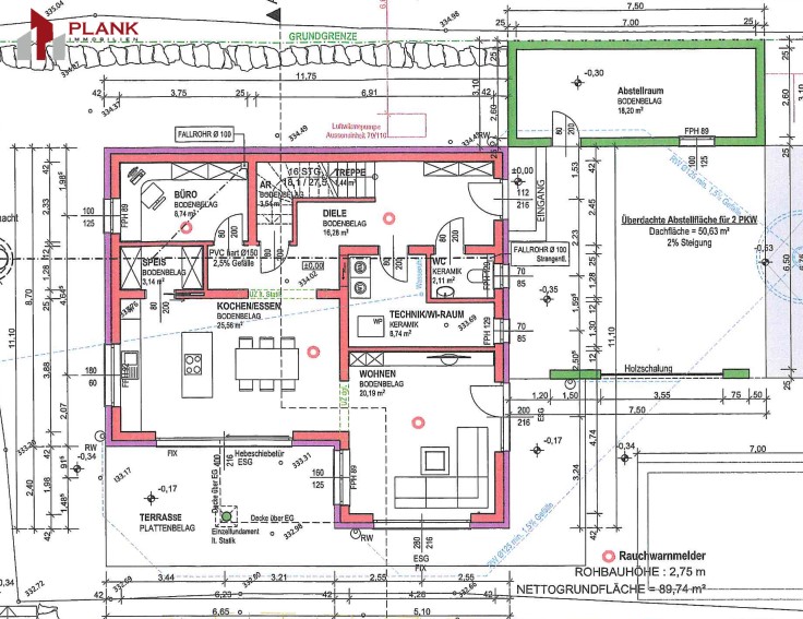
Suchen Sie nach einem modernen Neubauhaus in einer idyllischen, reizvollen Umgebung mit mildem Klima? Dann ist dieses wunderschöne Einfamilienhaus genau das Richtige für Sie! Das Haus wurde im Jahr 2022 in Ziegelmassivbauweise errichtet und bietet auf einer großzügigen Wohnfläche von 170 m² ausreichend Platz für Ihre Familie. Vom ersten Bauteil an wurde großer Wert auf die Verwendung hochwertiger Materialien gelegt. Der Bau wurde dabei von heimischen Firmen ausgeführt, was den regionalen Charakter des Hauses unterstreicht. Die Räume wurden großzügig und lichtdurchflutet geplant, sodass Sie in jedem Bereich ein Gefühl von Weite und Helligkeit genießen können. Besonders praktisch ist der massive Carport, der nicht nur Ihr Fahrzeug schützt, sondern auch Platz für Fahrräder, Gartenwerkzeuge oder den Rasenmäher bietet. Vom Carport aus gelangen Sie direkt ins Haus. Die Terrasse, die nach Südwesten ausgerichtet ist, lädt dazu ein, den ganzen Tag über die Sonne zu genießen. Für alle, die von einem eigenen Pool träumen, gibt es bereits eine Baugenehmigung seitens der Gemeinde für die Errichtung eines Pools – hier können Sie sich Ihre persönliche Wellness-Oase schaffen. Ein weiteres Highlight ist die hauseigene Photovoltaikanlage, die nicht nur umweltfreundlichen Strom erzeugt, sondern auch in Verbindung mit der Luftwärmepumpenheizung für die nötige Wärme sorgt. So können Sie Ihre Energiekosten auf ein Minimum reduzieren und gleichzeitig Ihren CO2-Fußabdruck verringern. Ihre Stromerzeugung können Sie jederzeit bequem über Ihr Smartphone überwachen. Raumaufteilung: Erdgeschoss: Vorraum, WC, Abstellraum, offenes Wohn-Esszimmer mit Küche, Büro oder Gästezimmer, Speis. Obergeschoss: Vorraum, zwei separate Bereiche: Bereich: Schlafzimmer, Bad mit WC, Ankleide oder Schrankraum. Bereich: Wohnbereich/Ankleide oder Schrankraum, Schlafbereich mit eigenem Bad und WC. Im Eingangsbereich erwartet Sie ein Doppelcarport mit praktischem Geräteraum. Die Außenanlagen können nach Ihren persönlichen Wünschen gestaltet werden, sodass Sie Ihr Traumhaus auch im Außenbereich nach Ihren Vorstellungen vollenden können. Haben Sie Fragen oder möchten Sie dieses wunderschöne Neubauhaus besichtigen? Zögern Sie nicht, mich unter der Nummer 0664 88511585 zu kontaktieren. Ich stehe Ihnen gerne zur Verfügung! Vereinbaren Sie gleich einen Besichtigungstermin und überzeugen Sie sich selbst von diesem einzigartigen Angebot. Ich freue mich auf unser Treffen!
Lage
Nähe der Therme Bad Loipersdorf, sonnig, ruhig, erhöht.
Zustand:Neuwertig
Bautyp:Neubau
Baujahr:2022
Heizung:Luftwärmepumpe
Die Vermittlung der Immobilien ist nach den Bestimmungen des Maklergesetzes provisionspflichtig.
Kontaktperson
Hr. Plank Peter
Email:pp@plankimmo.at
Tel.:0664 / 88 511 585


Expose drucken
Expose versenden