Suche verändern

2 Zimmer- Gartenwohnung mit Parkplatz! Als Anlage!


Objekt Nr.:760149
Objektgruppe:Wohnungen
Objektart:WOHNUNG
Kauf/Miete:Kauf
Lage
Strasse:Franz-Kautschitsch-Straße 8
PLZ:8580
Stadt:Köflach

Energieausweis Energieklasse E. Alle Angaben sind ca. Angaben. Irrtümer und Änderungen vorbehalten. Alle Preisangaben (z.B. Kaufpreise, Mietpreise) sind exkl. Nebenkosten und Maklerhonorar. Die angegebenen Maße verstehen sich als Nutzfläche und sind in ca. angegeben!
Objektdaten
Kaufpreis:EUR 89.000,00
Betriebskosten:EUR 164,57
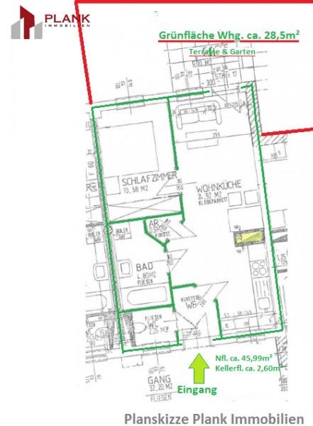
Nutzfläche:46 m2
Balkon- Terrassenfläche:9 m2
Gartenfläche:28 m2
Kellerfläche:3 m2
Anzahl Zimmer:2
Anzahl Schlafzimmer:1
Anzahl Badezimmer:1
Anzahl Wc:1
Anzahl Parkplätze:1
Beschreibung
Diese 2 Zimmer Wohnung bietet Terrasse, Garten und Parkplatz, in Köflach! Bei dieser attraktiven Gartenwohnung handelt es sich um eine 2-Zimmer-Wohnung mit einer Nutzfläche von ca. 45,99 m², einer ca. 9 m² großen Terrasse sowie einer zusätzlichen Grünfläche. Ein KFZ-Abstellplatz ist ebenfalls im Angebot enthalten. Die Wohnung befindet sich in einer gepflegten Wohnanlage in der Franz-Kautschitsch-Straße in Köflach, in unmittelbarer Nähe zur Therme Nova und Stoelzle Oberglas. Die gut geschnittene Wohnung liegt im Erdgeschoss und ist über einen separaten Zugang erreichbar. Die Gesamtfläche umfasst rund 46 m², hinzu kommen die Terrasse sowie eine zur Wohnung gehörende Grünfläche mit ca. 28,5 m². Sie präsentiert sich in sehr gepflegtem Zustand, ist voll möbliert und mit sämtlichem Geschirr sowie allen notwendigen Geräten ausgestattet – einziehen und wohlfühlen! Raumaufteilung: Vorraum, Badezimmer, separates WC, offener Wohn-Essbereich mit Küche und Zugang zur Terrasse, Abstellraum, Schlafzimmer, Garten, eigener Parkplatz sowie ein Kellerabteil. Für die Ablöse der Küche ist ein Betrag von € 3.000,- angesetzt. Die Beheizung erfolgt mittels Fernwärme. Wenn Sie Interesse an dieser idealen Starter- oder Singlewohnung haben und Ihr Erspartes sinnvoll investieren möchten, dann vereinbaren Sie gerne einen Besichtigungstermin. Ich freue mich auf Ihren Anruf!
Baujahr:1963
Die Vermittlung der Immobilien ist nach den Bestimmungen des Maklergesetzes provisionspflichtig.
Kontaktperson
Hr. Plank Peter
Email:pp@plankimmo.at
Tel.:0664 / 88 511 585


Expose drucken
Expose versenden