Suche verändern

Voll möblierte & eingerichtete Wohnung mit Terrasse, Garten und Parkplatz, auch für Dauerurlauber geeignet! Nähe Therme Nova!


Objekt Nr.:760147
Objektgruppe:Mietobjekte
Objektart:WOHNUNG
Kauf/Miete:Miete
Status:Sofort beziehbar
Lage
Strasse:Franz-Kautschitsch-Straße 8
PLZ:8580
Stadt:Köflach

Energieausweis: Energieklasse E. Alle Angaben sind ca. Angaben. Irrtümer und Änderungen vorbehalten. Alle Preisangaben (z.B. Kaufpreise, Mietpreise) sind exkl. Nebenkosten und Maklerhonorar. Die angegebenen Maße verstehen sich als Nutzfläche und sind in ca. angegeben!
Objektdaten
Gesamtmiete:EUR 450,00
Kaltmiete:EUR 450,00
Kaution:EUR 1.350,00
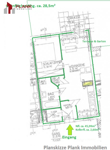
Nutzfläche:46 m2
Gartenfläche:28 m2
Kellerfläche:3 m2
Anzahl Zimmer:2
Anzahl Schlafzimmer:1
Anzahl Badezimmer:1
Anzahl Wc:1
Anzahl Parkplätze:1
Beschreibung
Diese Wohnung eignet sich nicht nur zum Wohnen sondern auch für Dauerurlauber, da die Wohnung voll möbliert und auch mit sämtlichem Geschirr ausgestattet ist. Die Wohnung befindet sich in der Franz-Kautschitsch-Straße 8 in 8580 Köflach, die monatliche Miete beträgt 450,- € (inkl. BK von € 90,-, exkl. Heizung und Strom). Die Wohnfläche beträgt ca. 46 m² plus Garten. Kaution in Höhe von 3 Monatsmieten! Die Wohnung steht ab 09/2025 zur Verfügung. Gesamtmiete € 450,- zzgl. Heizkosten (Fernwärme, separat vom Mieter anzumelden). Die Wohnung teilt sich wie folgt auf: Vorraum Bad WC Offener Wohn- Essbereich mit Küche und Terrasse Abstellraum Schlafzimmer Terrasse Garten Eigener Parkplatz Für eine vor Ort Besichtigung stehe ich Ihnen gerne zur Verfügung.
Die Vermittlung der Immobilien ist nach den Bestimmungen des Maklergesetzes provisionspflichtig.
Kontaktperson
Hr. Plank Peter
Email:pp@plankimmo.at
Tel.:0664 / 88 511 585


Expose drucken
Expose versenden